Basisdaten
Objektart: Wohnung zur Miete
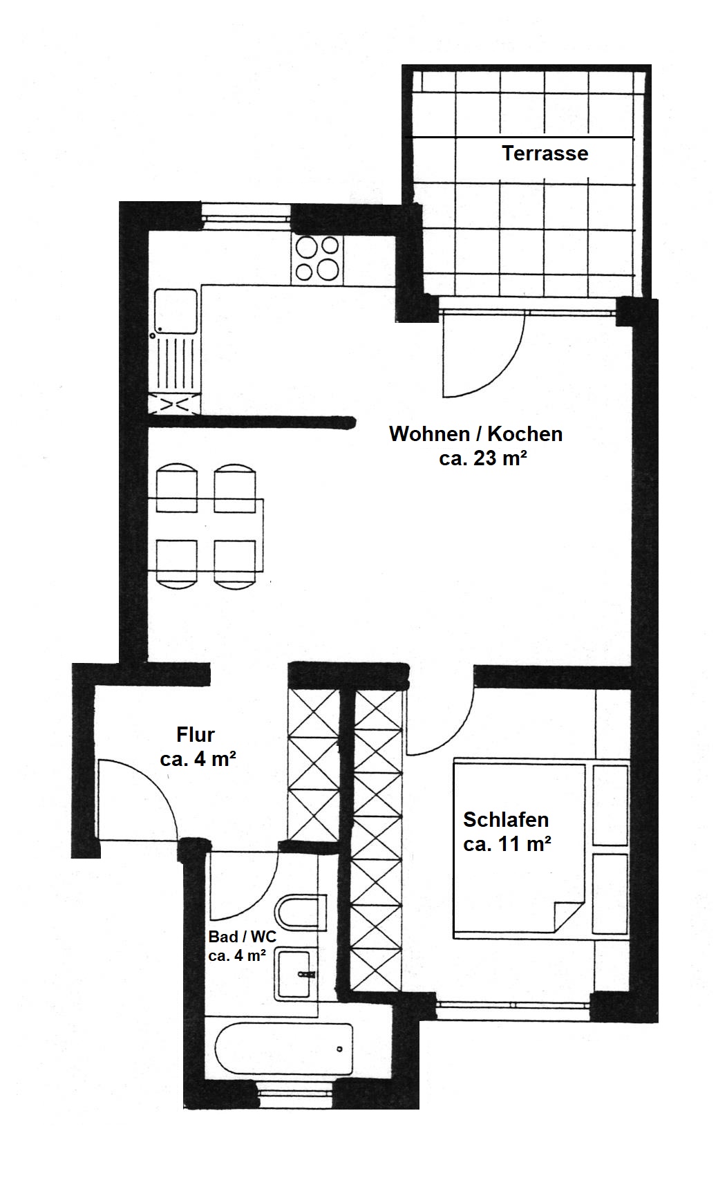
Wohnfläche ca.: 49,84 m²
Zimmer: 2
Etage: EG
Kaltmiete: 470 €
Nebenkosten: 150 €
Tiefgaragenstellplatz: 40 €
Warmmiete: 660 €
Kaution: 1020 €
Bad: mit Fenster, Badewanne und WC
Terrasse: ja
Einbauküche: ja
Heizung : Zentralheizung
Keller: ja
Gemeinschaftsräume: Waschmaschinen- und Trockenraum, Fahrradraum
Bezug ab: 01.05.2023
Energieausweis
Energieausweistyp: Verbrauchsausweis, erstellt am 04.12.2017
Endenergieverbrauch: 143,6 kWh/(m²*a)
Energieeffiziensklasse: E
Wesentlicher Energieträger: Gas
Baujahr Gebäude: 1995
Objektbeschreibung
Großzügiges Appartement mit separatem Schlafzimmer, Wohnbereich mit offener Küche und Zugang zu einer großen Südwest-Terrasse. Die vorhandene Einbauküche kann bei Bedarf in der Wohnung verbleiben. Bad mit Fenster, Badewanne, modernem Waschtisch- und Spiegelschrank sowie Wandheizkörper. Fußböden Laminat, Küche und Bad gefliest.
Zur Wohnung gehören ein eigener Kellerraum und ein großer Tiefgaragenstellplatz.
Als Gemeinschaftsräume stehen ein Waschmaschinen- und Trockenraum zur Verfügung.
Lagebeschreibung
Sehr beliebte, ruhige Wohnlage in Dresden-Coschütz. Öffentliche Verkehrsmittel (Bus und Straßenbahn Linie 3) befinden sich in der Nähe, ebenso Schule, Kindergarten, Ärzte sowie diverse Einkaufsmöglichkeiten
Entfernungen: das Gelände der TU Dresden ist etwa 2 km entfernt, bis zum Stadtzentrum (Hauptbahnhof) sind es etwa 3 km.
Autobahnauffahrt Dresden-Süd ca. 2 km
Sonstiges
Die Angaben basieren auf uns vom Eigentümer zur Verfügung gestellten Informationen. Wir übernehmen keine Gewähr für die Vollständigkeit, Richtigkeit und Aktualität der Angaben. Das Angebot ist freibleibend, Irrtum und zwischenzeitliche Vermietung vorbehalten!
Bitte haben Sie Verständnis, dass wir nur Anfragen mit vollständiger Adresse sowie Angabe einer Telefonnummer bearbeiten können! Kaesler Immobilien verwendet die von Ihnen mitgeteilten Daten ausschließlich zur Beantwortung Ihrer Anfrage. Mit vollständiger Erledigung Ihrer Anfrage werden die Daten wieder gelöscht, sofern Sie nicht ausdrücklich in deren weitere Nutzung eingewilligt haben oder die Nutzung Ihrer personenbezogenen Daten durch eine Rechtsvorschrift erlaubt ist.
Diese Wohnung ist aktuell bereits reserviert! Wir bitten Sie, sich bei Interesse trotzdem bei uns zu melden, damit wir Sie vormerken und informieren können, sofern das Angebot wieder zur Verfügung stehen sollte!














