Basisdaten
Objektart: Eigentumswohnung
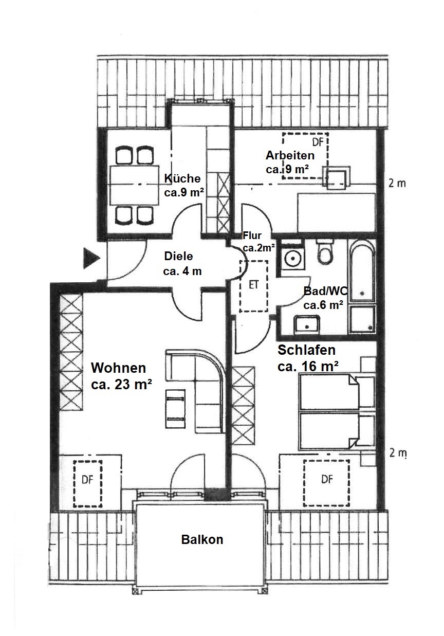
Wohnfläche ca.: 70,29 m²
Zimmer: 3
Etage: 3. OG
Etagenzahl: 4
Balkon: ja
Bad: mit Wanne, Dusche, WC, WM-Anschluss
Abstellraum: ja
Heizung: Zentralheizung
Keller: ja
Stellplatz: 1 Tiefgaragenstellplatz
Gemeinschaftsräume: Fahrrad- und Trockenraum
Freiwerdend zum Februar 2026
Kaufpreis (VB): 180.000 € (inclusive TG-Stellplatz)
Provision: 3,57 %
Energieausweis
Energieausweistyp: Verbrauchsausweis, erstellt am 22.02.2018
Endenergieverbrauch: 67 kWh/(m²*a)
Energieeffizienzklasse: B
Wesentlicher Energieträger: Erdgas
Baujahr Gebäude: 1996
Objektbeschreibung
Attraktive, demnächst freiwerdende 3-Zimmer-Wohnung mit großem Balkon im Dachgeschoss eines Mehrfamilienhauses mit insgesamt 8 Wohneinheiten.
Zur Wohnung gehören ein eigener Kellerraum sowie ein Tiefgaragenstellplatz. Zur gemeinschaftlichen Nutzung stehen ein Fahrrad- und ein Trockenraum zur Verfügung.
Besonderheit: Sondernutzungsrecht an dem über der Wohnung liegenden Speicherraum im Dachboden.
Ausstattung:
Fußböden Wohnzimmer und Flur mit Laminat
Schlafzimmer und Kinderzimmer mit Korkfußboden
Küche PVC-Belag, Bad gefliest
Bad mit Dusche, Wanne, WC und WM-Anschluss
Holzfenster mit Außenjalousien
Balkon ca. 8 m², vom Wohn- und Schlafzimmer aus begehbar.
Fußböden Laminat. Holzfenster mit Außenjalousien. Fahrrad- und Trockenraum zur gemeinschaftlichen Nutzung vorhanden
Raumhöhe 2,40 m
Holzfenster mit Außenjalousien an allen Fenstern
Zur gemeinschaftlichen Nutzung befinden sich im Keller ein Fahrrad- und ein Trockenraum
Lagebeschreibung
Beliebte, ruhige Randlage von Freital, die zu vielen Freizeitaktivitäten und Wanderungen zu Fuß oder per Fahrrad in die schöne Umgebung einlädt (Rabenauer Grund, Wellness- und Sportzentrum „Hains“, Windberg, Tharandter Wald, Talsperre Malter, Dippoldiswalder Heide, „Schweinsdorfer Alpen“….)
Öffentliche Verkehrsmittel (S-Bahn-Verbindung sowie Bus ins Zentrum von Freital sowie nach Dresden) befinden sich in unmittelbarer Nähe, ebenso sind Schule und Kindergarten sowie diverse Einkaufsmöglichkeiten (Weißeritzpark + NETTO) fußläufig erreichbar.
Sonstiges
Die Provision beträgt 3,57 % des Kaufpreises und ist mit Unterzeichnung des notariellen Kaufvertrages vom Käufer an Kaesler Immobilien zu zahlen.
Die Angaben basieren auf uns vom Eigentümer zur Verfügung gestellten Informationen. Wir übernehmen keine Gewähr für die Vollständigkeit, Richtigkeit und Aktualität der Angaben – verbindlich sind ausschließlich die im Notarvertrag enthaltenen Angaben. Das Angebot ist freibleibend, Irrtum und Zwischenverkauf vorbehalten!
Bitte haben Sie Verständnis, dass wir nur Anfragen mit vollständiger Adresse sowie Angabe einer Telefonnummer bearbeiten können! Kaesler Immobilien verwendet die von Ihnen mitgeteilten Daten ausschließlich zur Beantwortung Ihrer Anfrage. Mit vollständiger Erledigung Ihrer Anfrage werden die Daten wieder gelöscht, sofern Sie nicht ausdrücklich in deren weitere Nutzung eingewilligt haben oder die Nutzung Ihrer personenbezogenen Daten durch eine Rechtsvorschrift erlaubt ist.
















